Thiết kế Đài phun nước nghệ thuật đã trở thành một biểu tượng của sự tinh tế và thẩm mỹ trong không gian công cộng và tạo dấu ấn mạnh mẽ. Bài viết này sẽ giới thiệu chi tiết quy trình thiết kế đài phun nước nghệ thuật chuẩn tại UNION.
Nội dung chính
- 1 I. Thiết kế Đài phun nước nghệ thuật từ ý tưởng đến hiện thực
- 2 II. Lợi Ích Của việc thiết kế Đài Phun Nước
- 3 III. Kiến thức tổng quan cần biết trước khi thiết kế đài phun nước
- 4 III. Quy trình thiết kế đài phun nước nghệ thuật chuẩn tại UNION
- 5 IV. Lưu ý Trong Quá Trình Thiết Kế Đài Phun Nước
- 6 V. Lựa chọn đơn vị thiết kế đài phun nước uy tín
- 7 Báo giá thiết kế đài phun nước nghệ thuật tại UNION – mới nhất
- 8 Kết luận
I. Thiết kế Đài phun nước nghệ thuật từ ý tưởng đến hiện thực
Thiết kế Đài phun nước nghệ thuật không chỉ đơn thuần là một hệ thống thủy lực, mà còn là một tác phẩm nghệ thuật thực thụ. Chúng xuất phát từ ý tưởng sáng tạo và mong muốn làm đẹp môi trường xung quanh. Thường được đặt tại các khu vực công cộng, công viên, khu thương mại, và thậm chí trong các dự án bất động sản, đài phun nước nghệ thuật đã trở thành một phần quan trọng trong thiết kế không gian đô thị và khu vui chơi giải trí,…
![Thiết kế đài phun nước nghệ thuật [Trọn gói] Nhạc nước UNION - UNION Dịch vụ thiết kế đài phun nước nghệ thuật trọn gói](https://union.com.vn/wp-content/uploads/2023/09/thiet-ke-dai-phun-nuoc-nghe-thuat-1024x576.jpg)
Tất cả mọi công trình nghệ thuật đều bắt đầu từ một ý tưởng. Ý tưởng này có thể là một tác phẩm nghệ thuật hoặc một yếu tố tạo điểm nhấn cho môi trường xung quanh. Các nhà thiết kế và kiến trúc sư thường là người khởi đầu ý tưởng này dựa trên mục tiêu và ứng dụng cụ thể của dự án. Kế hoạch được lập ra để biến ý tưởng thành hiện thực. Nó bao gồm việc xác định vị trí phù hợp để xây dựng đài phun nước nghệ thuật , lựa chọn hệ thống bơm, và xác định các yếu tố thiết kế quan trọng.
II. Lợi Ích Của việc thiết kế Đài Phun Nước
Thiết kế đài Đài phun nước là công việc quan trọng để tạo nên những công trình đài phun nước đẹp và các giá trị khác. Dưới đây là một số lợi ích của đài phun nước:
Trang trí cảnh quan: Đài phun nước tạo điểm nhấn thẩm mỹ cho không gian xung quanh. Các biểu diễn nước độc đáo và thú vị làm cho môi trường trở nên hấp dẫn hơn, cải thiện tính thẩm mỹ và tạo ra không gian sống động.
Không gian Giải Trí: Đài phun nước là một nguồn giải trí thú vị cho mọi lứa tuổi. Trẻ em và người lớn có thể thư giãn và tận hưởng những khoảnh khắc vui vẻ khi tương tác với nước. Một số đài phun nước được thiết kế để tạo ra âm nhạc nước độc đáo. Điều này kết hợp âm thanh và ánh sáng với nước, tạo ra biểu diễn nước và âm nhạc đồng bộ, tạo nên trải nghiệm đa giác quyến rũ. Đài phun nước thường là nơi tập trung của người dân trong các khu vực đô thị. Chúng tạo ra cơ hội gặp gỡ, giao lưu xã hội và tạo cộng đồng.
Tạo không gian xanh: Các đài phun nước thường được xây dựng trong các khu vực công cộng và công viên, giúp tạo ra các khu vực xanh và mát mẻ. Chúng cải thiện chất lượng không khí xung quanh và tạo điểm tụ điểm cho việc tận hưởng thiên nhiên.
Điều hòa không khí: Các đài phun nước tạo ra hiệu ứng làm mát trong môi trường đô thị. Chúng làm giảm nhiệt độ xung quanh vào mùa hè và mang lại cảm giác thoải mái cho người dân.
Thúc đẩy du lịch: Các khu vực có đài phun nước thường thu hút du khách. Điều này có thể giúp thúc đẩy du lịch địa phương và tạo cơ hội kinh doanh cho các doanh nghiệp địa phương.
Tạo nên không gian thư giãn: Đài phun nước có khả năng tạo ra môi trường thư giãn và tinh thần lạc quan. Việc ngắm nhìn nước phun và nghe tiếng nước động có thể giúp giảm căng thẳng và tạo cảm giác thoải mái. Các đài phun nước có thể được thiết kế với mục tiêu thúc đẩy nghệ thuật và sáng tạo. Chúng trở thành bản tác phẩm nghệ thuật độc đáo và thú vị.
III. Kiến thức tổng quan cần biết trước khi thiết kế đài phun nước
Nguyên lý hoạt động
Đài phun nước nghệ thuật hoạt động dựa trên nguyên tắc đơn giản của nước được cung cấp và phun ra. Tuy nhiên, để tạo ra các hiệu ứng thẩm mỹ và tinh tế, hệ thống bơm và áp lực nước phải được điều chỉnh một cách tỉ mỉ. Nước thường được đưa qua các ống dẫn để tạo ra các mẫu phun nước độc đáo, từ những dải mưa nhẹ đến những cột nước cao vút.
![Thiết kế đài phun nước nghệ thuật [Trọn gói] Nhạc nước UNION - UNION Các thành phần cấu hình nên hệ thống nhạc nghệ thuật](https://union.com.vn/wp-content/uploads/2023/04/mo-hinh-nhac-nuoc-nghe-thuat.jpg)
Thẩm mỹ và Hiệu ứng
Một trong những yếu tố quan trọng nhất của đài phun nước nghệ thuật là thẩm mỹ và hiệu ứng nghệ thuật mà nó tạo ra. Thiết kế đài phun nước nghệ thuật được xây dựng để làm cho nước trở thành một bức tranh sống động. Sự kết hợp giữa màu sắc, ánh sáng, và âm nhạc tạo nên một trải nghiệm đa giác quyến rũ. Bản thân ánh sáng có thể được điều chỉnh để tạo ra các hiệu ứng sáng tạo, như ánh sáng mặt trời chiếu qua các giọt nước, tạo ra vầng cầu sáng rực.
Công nghệ điều khiển:
Công nghệ điều khiển đóng một vai trò quan trọng và không thể thiếu trong nguyên lý hoạt động của đài phun nước nghệ thuật. Dưới đây là một số trò chính của công nghệ điều khiển trong hoạt động của đài phun nước:
- Điều Khiển Hiệu Ứng Nước: Công nghệ điều khiển cho phép quản lý việc phun nước theo các mẫu, độ cao, và góc nghiêng khác nhau. Điều này tạo ra các hiệu ứng nước đa dạng như phun nước theo hình cầu, chòi nước, hoặc cột nước cao. Công nghệ này cũng cho phép tạo ra các hiệu ứng đặc biệt như đồng loạt phun nước theo nhịp âm nhạc.
- Điều Khiển Ánh Sáng: Công nghệ điều khiển ánh sáng cho phép điều chỉnh màu sắc, độ sáng, và tần số nhấp nháy của ánh sáng chiếu lên nước. Điều này tạo ra các hiệu ứng ánh sáng phong phú và đa dạng, từ ánh sáng màu sắc đổi thay theo thời gian đến các hiệu ứng ánh sáng nhấp nháy theo nhạc.
- Điều Khiển Âm Nhạc: Công nghệ điều khiển âm nhạc liên kết hoạt động của đài phun nước với âm nhạc. Điều này đòi hỏi đồng bộ hóa phun nước, ánh sáng, và hiệu ứng âm thanh theo thời gian thực với âm nhạc được chọn. Khi công nghệ này hoạt động, đài phun nước có thể biểu diễn như một biểu diễn âm nhạc nước sống động.
Lựa Chọn Vị Trí Thích Hợp để thiết kế đài phun nước
Lựa chọn vị trí thích hợp cho đài phun nước là một phần quan trọng trong quá trình triển khai. Dưới đây là một số yếu tố quan trọng cần xem xét khi lựa chọn vị trí cho đài phun nước:
- Khả năng Tương Tác Cộng Đồng: Đài phun nước thường được đặt ở những vị trí mà cộng đồng có thể dễ dàng tiếp cận và tương tác. Các công viên, quảng trường, khu đô thị và khu vui chơi là các vị trí thường được ưa chuộng. Điều này giúp tạo cơ hội cho người dân và du khách tham gia vào trải nghiệm đài phun nước.
- An Toàn: Vị trí của đài phun nước cần phải đảm bảo an toàn cho mọi người. Đảm bảo rằng không có nguy cơ tai nạn hoặc nguy hiểm trong khu vực gần đó, đặc biệt là đối với trẻ em.
- Khả Năng Quản Lý Nước: Vị trí cần có khả năng cung cấp nguồn nước đủ lớn để vận hành đài phun mà không gây áp lực quá mức lên hệ thống cung cấp nước địa phương. Ngoài ra, cần xem xét khả năng tái sử dụng nước để tối ưu hóa sử dụng tài nguyên.
- Môi Trường Xung Quanh: Vị trí nên phù hợp với môi trường xung quanh và không làm xâm phạm đến thiên nhiên hoặc cảnh quan hiện có. Đặc biệt quan trọng nếu bạn đặt đài phun nước trong môi trường thiên nhiên như công viên hoặc khu vườn.
- Kết Nối Điện và Cấu Trúc Dưới Đất: Để vận hành đài phun nước, bạn cần kết nối với nguồn điện và hệ thống cấp nước. Vị trí cần có sẵn điện và đảm bảo rằng không có cấu trúc dưới đất gây trở ngại cho việc lắp đặt hệ thống.
- Sự Hấp Dẫn Thị Giác: Vị trí nên có khả năng tạo điểm nhấn thẩm mỹ và thu hút người xem. Điều này có thể là một phần quan trọng để đảm bảo rằng đài phun nước trở thành một phần không thể thiếu của không gian. Nếu bạn muốn đài phun nước có thể hoạt động vào ban đêm, bạn cần xem xét cả ánh sáng xung quanh vị trí. Điều này có thể làm cho đài phun nước trở nên đặc biệt và lôi cuốn vào buổi tối.
- Phù Hợp với Mục Tiêu: Cuối cùng, vị trí cần phù hợp với mục tiêu của dự án đài phun nước. Nếu mục tiêu là giải trí, vị trí gần các khu vui chơi hoặc nhà hàng có thể là lựa chọn tốt. Nếu mục tiêu là cải thiện môi trường, vị trí trong công viên hoặc khu vực xanh là phù hợp.
Khi xem xét tất cả các yếu tố này, việc lựa chọn vị trí thích hợp sẽ giúp đảm bảo rằng đài phun nước của bạn sẽ hoạt động một cách hiệu quả và tạo ra giá trị cho cộng đồng.
Lựa chọn thiết kế đài phun nước phù hợp với nhu cầu thực tế
Hiện nay có rất nhiều chủng loại đài phun nước đa dạng cả về kiểu dáng, quy mô. Có thể chia ra như sau:
Theo cấu tạo:
- Đài phun nước âm sàn (sàn phun nước),
![Thiết kế đài phun nước nghệ thuật [Trọn gói] Nhạc nước UNION - UNION Đài phun nước Âm sàn](https://union.com.vn/wp-content/uploads/2023/09/dai-phun-nuoc-am-san-3.jpg)
- Đài phun nước bể nổi
![Thiết kế đài phun nước nghệ thuật [Trọn gói] Nhạc nước UNION - UNION Đài phun nước phao nổi](https://union.com.vn/wp-content/uploads/2023/09/dai-phun-nuoc-phao-noi.jpg)
- Đài phun nước tầng tràn
![Thiết kế đài phun nước nghệ thuật [Trọn gói] Nhạc nước UNION - UNION Đài phun nước tầng tràn](https://union.com.vn/wp-content/uploads/2023/09/dai-phun-nuoc-tang-tran-1.jpg)
- Đài phun nước phao nổi (Đài phun nước trên sông)
![Thiết kế đài phun nước nghệ thuật [Trọn gói] Nhạc nước UNION - UNION Đài phun nước trên sông](https://union.com.vn/wp-content/uploads/2023/09/dai-phun-nuoc-tren-song-1.jpg)
- Đài phun nước tiểu cảnh
![Thiết kế đài phun nước nghệ thuật [Trọn gói] Nhạc nước UNION - UNION Đài phun nước tiểu cảnh](https://union.com.vn/wp-content/uploads/2023/07/f0d865e63383f2a2a8ed629c285294b4.jpg)
- Đài phun nước mini
Hình ảnh đài phun nước mini bằng treTheo kiểu dáng:
- Đài phun nước hình tròn
- Đài phun nước hình chữ nhật
- Đài phun nước hình vuông
- Đài phun nước hình bán nguyệt
- Đài phun nước chữ S
Theo vị trí:
- Đài phun nước trong nhà,
- Đài phun nước ngoài trời,
- Đài phun nước cho công viên,
- Đài phun nước trường học,
- Đài phun nước khách sạn,
- Đài phun nước cơ quan,
- Đài phun nước khu đô thị,
- Đài phun nước vòng xuyến…
Theo chất liệu:
- Đài phun nước bằng đá
- Đài phun nước bằng bê tông
- Đài phun nước bằng gạch
- Đài phun nước bằng tre,…
Theo hình thức:
- Đài Phun Nước Thông Thường (Fountain): Là đài phun chỉ phun tia nước tự nhiên và không sử dụng ánh sáng hay hiệu ứng thông qua hệ thống điều khiển kỹ thuật số. Đồng thời chỉ tạo ra các hiệu ứng thông qua các vòi nước như: vòi phun sủi bọt, Đầu phun cối xoay gió, Đầu phun dạng cốc sủi bọt, Đầu phun dạng cột sủi bọt, Đầu phun hình cây thông, Đầu phun hình nấm, Đầu phun hình pháo hoa, Đầu phun hình tia, Đầu phun hình xẻ quạt,… . Chúng có thể điều chỉnh độ cao và hình dạng của các vòi phun. Xem nhiều: vòi phun nước đẹp tại UNION
- Đài Phun Nước Ánh Sáng (Lighted Fountain): Đài phun nước ánh sáng tạo ra các hiệu ứng ánh sáng đa dạng kết hợp với nước. Chúng sử dụng đèn LED và các thiết bị chiếu sáng để tạo ra các màu sắc và hiệu ứng ánh sáng đẹp mắt. Xem thêm: đèn led đài phun nước chất lượng của UNION
- Đài Phun Nước Nhạc Nước (Musical Fountain) hay Đài phun nước nghệ thuật: Đài phun nước nhạc nước kết hợp nước, âm nhạc và ánh sáng để tạo ra các biểu diễn phức tạp. Các đài phun nước nghệ thuật của UNION sẽ được sử dụng Bộ điều khiển nhạc nước hiện đại nhất hiện nay để điều khiển tạo ra các hiệu ứng nước đẹp mắt nhất. Chúng có thể tạo ra hiệu ứng phun nước phức tạp và thậm chí mô phỏng hình ảnh hoặc biểu đồ.
III. Quy trình thiết kế đài phun nước nghệ thuật chuẩn tại UNION
Trường hợp các dự án nhỏ, đài phun nước nhỏ:
Đối với các dự án nhỏ, đài phun nước nhỏ thì quy trình thiết kế đài phun nước nghệ thuật gồm các bước sau:
- Tiếp nhận thông tin yêu cầu khách hàng: biết được nhu cầu và ngân sách
- Lựa chọn mô hình đài phun nước phù hợp
- Thiết kế sơ bộ đài phun nước nghệ thuật
- Lập bảng báo giá
- Ký kết hợp đồng thi công
Trường hợp các dự án vừa và lớn:
Đối với khách hàng, hoặc chủ sở hữu có nhu cầu về đài phun nước nghệ thuật, cần biết công cụ ngân sách đầu tư để xây dựng và thiết kế hệ thống.
Quy trình thiết kế đài phun nước nghệ thuật sẽ được áp dụng cho các công việc vừa và lớn sau:
![Thiết kế đài phun nước nghệ thuật [Trọn gói] Nhạc nước UNION - UNION Quy trình thiết kế đài phun nước nghệ thuật](https://union.com.vn/wp-content/uploads/2023/09/THIET-KE-DAI-PHUN-NUOC-NGHE-THUAT-1-1024x576.jpg)
Bước 1. Tiếp nhận thông tin, khảo sát thực tế
Tiếp nhận yêu cầu từ Khách hàng: Tìm hiểu những yêu cầu cơ bản từ phía khách hàng là điểm khởi đầu quan trọng. Điều này bao gồm kích thước, vị trí, kích thước, và các yêu cầu thẩm định mỹ hoặc ứng dụng cụ thể mà khách hàng muốn đạt được và Ngân sách đầu tư .
Sử dụng trang web khảo sát thực tế: trước đây khi thiết kế đài phun nước nghệ thuật là một bước quan trọng trong quá trình xây dựng hệ thống này. Quá trình này bao gồm việc đánh giá và thu thập thông tin về vị trí lắp đặt, điều kiện môi trường và yêu cầu kỹ thuật. Ý nghĩa của khảo sát thực tế bằng bao gồm:
- Đánh giá Điều kiện Hiện tại: Khảo sát xác định môi trường điều kiện hiện tại tại vị trí cụ thể. Điều này bao gồm thông tin về địa hình, nước ngâm, và yếu tố khác có thể ảnh hưởng đến hoạt động của hệ thống.
- Xác định Rủi ro và Chế độ: Khảo sát xác định các rủi ro và hạn chế có thể xuất hiện trong quá trình thi công và vận hành hệ thống đài phun nước. Điều này giúp thiết lập kế hoạch để giảm thiểu các vấn đề.
- Kiểm tra Khả năng Tương tự Thích: Khảo sát bằng cách xác định khả năng tương thích của hệ thống với môi trường xung quanh, bao gồm các công việc đảm bảo rằng không có gian và cơ sở hạ tầng có sẵn phù hợp với yêu cầu kỹ thuật của system.
- Lập kế hoạch thiết kế: Thông tin thu thập từ các thiết bị khảo sát sẽ cung cấp hướng dẫn cho quá trình thiết kế hệ thống đài phun nước nước. Nó giúp đảm bảo rằng thiết kế sẽ phù hợp với điều kiện thực tế và đạt được mục tiêu của dự án.
- Tối Ưu Hóa Tài Nguyên: Khảo sát giúp tối ưu hóa công việc sử dụng tài nguyên như nước và năng lượng. Điều này có lợi cho khả năng vận hành hiệu quả và bảo vệ môi trường.
- Bảo Bảo An Toàn: Khó hiểu điều kiện môi trường thông tin khảo sát bằng cách giúp đảm bảo an toàn cho người tham gia thi công và vận hành hệ thống đài phun nước.
Bước 2. Xây dựng hệ thống đài phun nước
Quá trình phân tích kỹ thuật trong công việc thiết kế một hệ thống phun nước nghệ thuật yêu cầu sự cân nhắc và chi tiết để đảm bảo tính chính xác và hiệu quả của dự án. Dưới đây là tất cả các yếu tố quan trọng cần được xem xét trong quá trình phân tích kỹ thuật:
Yêu cầu Kỹ thuật: Xác định các yêu cầu kỹ thuật như độ cao, áp lực nước, tiết kiệm lượng nước và năng lượng cần thiết để hoạt động hệ thống đài phun nước. Xác định loại phun nước và các hiệu ứng mà hệ thống cần tạo ra.
QUY TRÌNH XÂY DỰNG HỆ THỐNG ĐÀI PHUN NƯỚC NGHỆ THUẬT CHUẨN
1. Vòng lựa chọn vòi phun nước cần có hệ thống: Khi thiết kế đài phun nước nghệ thuật thì thông số cần biết đầu tiên là số lượng vòi phun, kích thước vòi phun và chiều cao cột nước, kiểu phun,.. . Đây là cơ sở đầu tiên để xây dựng hệ thống đài phun nước nghệ thuật.
2. Lựa chọn Máy bơm nước : Lựa chọn loại hộp và hệ thống cung cấp nước là quyết định quan trọng. Hướng dẫn cần phải đủ mạnh để tạo áp lực nước cần thiết cho các hiệu ứng phun nước nhưng cũng phải tiết kiệm năng lượng. Cần phải xác định số lượng máy bơm nước cho hệ thống.
3. Ống dẫn nước: Thiết kế và ống dẫn nước được lựa chọn phải đảm bảo nước có thể lưu trữ một cách hiệu quả cho các điểm phun. Điều này đòi hỏi tính toán kỹ thuật để đảm bảo áp lực và tiết kiệm lượng nước phù hợp. Phải xác định chiều dài ống nước cần thiết cho hệ thống đài phun nước nghệ thuật.
4. Lựa chọn Hệ thống đèn led âm nước : Nếu hệ thống có tích hợp ánh sáng, cần xác định loại đèn, màu sắc, cường độ sáng và các ứng dụng ánh sáng mà khách hàng mong muốn và xác định số lượng công cụ các.
5. Xác định Hệ thống có tích hợp âm nhạc hay không : xác định các loại âm thanh yêu cầu bao gồm loại loa, công suất và tích hợp với điều khiển hệ thống.
6. Lựa chọn hệ thống điều khiển hệ thống : việc xây dựng hệ thống cần phải nắm chắc nguyên lý hoạt động và cách thức hoạt động của từng thiết bị trong hệ thống. Từ việc xác định số lượng vòi phun, số lượng phun, số lượng đèn và có tích hợp phát nhạc hay không mà lựa chọn hệ thống điều khiển phù hợp. Một hệ thống điều khiển nhạc nghệ thuật thông thường có các bộ điều khiển sau:
- Bộ điều khiển toàn bộ hệ thống
- Bộ điều khiển phát nhạc
- Bộ khuếch đại tín hiệu
- Bộ điều khiển van điện từ
- Tần số điều khiển
7. Lựa chọn nguồn : Nguồn là nguồn cấp thiết bị quan trọng để đảm bảo hoạt động ổn định của hệ thống.
8. Lựa chọn giải pháp và thiết bị xử lý nước (nếu có). Thông thường các đài phun nước nghệ thuật sẽ sử dụng một nguồn cố định nước để tạo thành một vòng tuần hoàn thành công. Nước từ bể nước >> vòi phun >>bên ngoài và quay về bể bể. Cần phải xây dựng thêm một hệ thống xử lý và cấp nước để hệ thống phun nước hoạt động theo một cách ổn định.
9. Xác định và lựa chọn vật tư phụ: như dây điện, dây điện hiệu, … cần tính toán tất cả các thiết bị khác cần thiết để hoàn thiện thiết kế đài phun nước nghệ thuật thuật.
Bước 3. Ngân sách tính toán tối ưu
Khi đã xác định các yếu tố kỹ thuật cơ bản, việc tính toán ngân sách là bước tiếp theo. Việc xây dựng và vận hành đài phun nước đòi hỏi đầu tư về tài chính. Ngân sách là một phần quan trọng trong quá trình triển khai dự án đài phun nước. Dưới đây, chúng tôi sẽ xem xét các yếu tố quan trọng bạn cần xem xét khi xây dựng ngân sách cho dự án đài phun nước của bạn.
- Thiết Bị Đài Phun Nước: Điều quan trọng nhất là xác định loại và số lượng thiết bị đài phun nước bạn cần. Điều này bao gồm các vòi phun, động cơ, bộ điều khiển, và thiết bị ánh sáng. Giá trị của thiết bị này sẽ chiếm một phần lớn trong ngân sách của bạn.
- Công Trình Xây Dựng: Nếu dự án yêu cầu xây dựng cơ sở hạ tầng hoặc bể nước, bạn cần tính toán chi phí xây dựng, bao gồm công nhân, vật liệu, và thiết bị xây dựng.
- Công Lao Động: Đảm bảo tính toán các chi phí liên quan đến công lao động, bao gồm cả việc lắp đặt và bảo trì sau này. Điều này bao gồm cả tiền lương cho các kỹ sư, công nhân và nhân viên bảo trì.
- Dự Phòng: Đôi khi, có những khả năng xảy ra sự cố hoặc sự trục trặc trong quá trình triển khai dự án. Bạn cần phải tính toán một khoản tiền dự phòng để đối phó với các tình huống không mong muốn.
- Chi Phí Vận Hành Và Bảo Trì: Đài phun nước yêu cầu chi phí vận hành và bảo trì định kỳ để đảm bảo hoạt động ổn định và bền bỉ. Điều này bao gồm tiền nước, điện, và các dịch vụ bảo trì định kỳ.
- Phí Tư Vấn Và Thiết Kế: Nếu bạn thuê các chuyên gia hoặc công ty tư vấn để thiết kế và giám sát dự án, bạn cần tính toán các chi phí liên quan đến họ.
- Giấy Phép Và Quản Lý Dự Án: Chi phí liên quan đến việc xin giấy phép xây dựng và quản lý dự án cũng cần được tính vào ngân sách..
- Thuế Và Phí: Không quên tính toán các khoản thuế và phí liên quan đến dự án của bạn.
- Dự Án Phát Triển Trong Tương Lai: Nếu bạn dự định mở rộng hoặc cải thiện dự án trong tương lai, bạn có thể muốn tính toán các chi phí liên quan đến điều này trong ngân sách ban đầu.
- Tài Chính Dự Phòng: Cần có tài chính dự phòng để đảm bảo rằng bạn có khả năng chi trả cho các sự cố hoặc chi phí bất ngờ trong quá trình triển khai dự án.
Khi đã xác định các yếu tố trên, bạn có thể tính tổng chi phí để xây dựng và vận hành dự án đài phun nước của mình. Điều này sẽ giúp bạn xác định nguồn tài chính cần thiết và quản lý ngân sách một cách hiệu quả.
UNION sẽ tính toán và Lập bảng báo giá thiết kế thi công đài phun nước nghệ thuật gửi cho khách hàng hoặc chủ đầu tư. Đến khi thống nhất thì bắt đầu chuyển qua giai đoạn thiết kế.
Bước 4. Thiết kế Đài phun nước nghệ thuật
Thiết Kế Đài Phun Nước Nghệ Thuật là quá trình sáng tạo và kỹ thuật hóa ý tưởng thành hiện thực thú vị. Nó kết hợp nghệ thuật phun nước, ánh sáng, âm nhạc và công nghệ điều khiển để tạo ra biểu tượng diễn thú vị và thẩm mỹ.
Thiết kế đòi hỏi tính toàn diện, xem xét yêu cầu của khách hàng, môi trường, và quy định kỹ thuật. Nó cũng tập trung vào khả năng tương tác với người xem, tạo ra trải nghiệm độc và cảm giác xúc giác. Thiết kế đài phun nước nghệ thuật đòi hỏi sự kết hợp giữa nghệ thuật và kỹ thuật để tạo ra tác phẩm nghệ thuật nước sống động và ấn tượng.
Thiết kế của đài phun nước đóng vai trò quan trọng trong công việc tạo ra sự độc đáo và tinh tế. Nó phải phù hợp với môi trường xung quanh và đáp ứng các tiêu chuẩn thiết kế đã được xác định. Dưới đây là một số yếu tố quan trọng trong thiết kế đài phun nước:
- Hiệu ứng nghệ thuật: Đài phun nước nghệ thuật không đơn giản là một cấu trúc kỹ thuật mà còn là một tác phẩm nghệ thuật. Thiết kế cần tạo ra biểu tượng ấn tượng nghệ thuật ứng dụng, từ các mẫu phun nước độc đáo đến các hiệu ứng ánh sáng và âm nhạc.
- Cảm giác thư giãn: Mục tiêu của đài phun nước thường bao gồm công việc tạo ra một không gian thư giãn và thú vị. Thiết kế cần tạo ra môi trường mà người tham quan có thể thư giãn, tận hưởng và tương tác với nước một cách thoải mái.
- Tương tác với môi trường: Thiết kế cần đảm bảo rằng đài phun nước hòa hòa với môi trường xung quanh. Điều này có thể bao gồm việc lựa chọn các yếu tố thiết kế phù hợp với bản sắc văn hóa và thiên nhiên của khu vực. Ví dụ, tại một công viên có thiên nhiên rừng xanh, người thiết kế có thể tích hợp các yếu tố tự nhiên như cây nguy hiểm và đá.
Công việc chính của thiết kế đài phun nước nghệ thuật
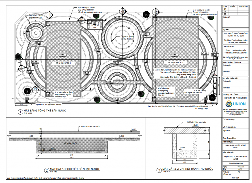
Thiết kế bản vẽ 2D: là quá trình thiết kế các bản vẽ chi tiết về trang trí đài phun nước trên mặt bằng; chi tiết lắp đặt, vòi , đèn điện; mặt bằng đi dây cáp: đèn lồng, nguồn; sơ đồ kết nối động lực, điều khiển,…
![Thiết kế đài phun nước nghệ thuật [Trọn gói] Nhạc nước UNION - UNION bản vẽ thiết kế 2D bằng thiết kế đài phun nước nghệ thuật](https://union.com.vn/wp-content/uploads/2023/09/Screenshot_1-1-1024x743.png)
Ví dụ thực tế về các bản vẽ của một dự án đài phun nước âm sàn hay còn gọi sàn nhạc nước.
-
- MẶT BẰNG BỐ TRÍ CÁC ĐIỂM PHUN NƯỚC
- MẶT BẰNG VỊ TRÍ KHOÉT LỖ CHỜ LẮP ĐẶT THIẾT BỊ
- CHI TIẾT LẮP ĐẶT MÁY BƠM – VÒI PHUN – ĐÈN LED
- CHI TIẾT LẮP ĐẶT BẢO VỆ HỘ DÂY ĐIỆN HDPE TỪ BỂ NƯỚC VỀ PHÒNG KỸ Thuật
- MẶT BẰNG KÉO RẢI CÁP NGUỒN ĐÈN LED
- MẶT BẰNG KÉO RẢI CÁP NGUỒN MÁY BƠM
- MẶT BẰNG KÉO RẢI CÁP TÍN HIỆU ĐÈN LED
- MẶT BẰNG KÉO RẢI CÁP TÍN HIỆU MÁY BƠM
- SƠ ĐỒ ĐƠN TUYẾN HỆ THỐNG ĐIỆN
- SƠ ĐỒ TỦ ĐIỆN
- SƠ ĐỒ TIMER – BỘ GIÁM SÁT MỰC NƯỚC
- SƠ ĐỒ ĐẤU NỐI PHẦN ĐỘNG LỰC
- SƠ ĐỒ ĐẤU NỐI PHẦN ĐIỀU KHIỂN
Thiết kế diễn họa 3D: là quá trình thiết kế mô phỏng 3D, giúp xem tổng thể mô hình toàn bộ dự án đài phun nước về cách hoạt động cũng như các hiệu ứng phun nước của hệ thống.
Lập trình hiệu ứng phun nước cho đài phun nước: là quá trình tạo nên những ứng dụng phun nước nghệ thuật được thiết lập để phun nước đúng với kịch bản hoặc bản nhạc có sẵn.
Hiệu ứng phun nước nghệ thuật là sự kết hợp giữa tia nước được phun với ánh sáng và âm thanh để tạo nên màn trình diễn phun nước nghệ thuật độc độc và thu hút.
Chi phí thiết kế đài phun nước nghệ thuật:
Tùy chỉnh theo mô hình dự án và mức độ phức tạp, chi phí thiết kế đài phun nước nghệ thuật sẽ khác nhau: (giá tham khảo)
- Dự án 50 triệu đến 150 triệu: chi phí từ 5 đến 20 triệu
- Dự án 150 triệu đến 300 triệu: chi phí thiết kế từ 20 triệu đến 30 triệu
- Dự án 300 triệu đến 1 tỷ lệ: chi phí thiết kế từ 30 triệu đến 100 triệu
- Dự án 1 tỷ lệ đến 10 tỷ lệ: Chi phí thiết kế từ 90 triệu đến 200 triệu
- Dự án 10 tỷ trở lên: Chi phí thiết kế đài phun nước nghệ thuật từ 180 triệu trở lên
Bước 5. Ký kết hợp đồng thiết kế và thi công đài phun nước
Sau khi hoàn thành thiết kế và cuối cùng là bước thiết lập đồng bộ và ký kết hợp nhất. Việc cài đặt đồng bộ và ký kết sẽ được thực hiện sau khi hoàn tất thiết kế. Hợp đồng sẽ thành lập và gửi cho khách hàng hoặc chủ đầu tư. Thông thường có thể có từ 2 bản trở lên. 1 Bảng chủ tư hay khách hàng giữ lại, các bản hợp đồng còn lại UNION sẽ giữ lại. Thời gian ký kết hợp đồng phụ thuộc vào khách hàng hoặc chủ đầu tư, thông thường từ 2 đến 1 tuần và có thể dài hơn.
Sau khi bạn đã hoàn tất các bước chuẩn bị và đã quyết định triển khai dự án đài phun nước, bước tiếp theo quan trọng là lập/hoặc ký kết hợp đồng và thỏa thuận với các đối tác liên quan. Dưới đây là những điểm quan trọng cần xem xét khi lập hoặc ký kết hợp đồng và thỏa thuận:
Xác Định Rõ Trách Nhiệm và Phạm Vi Công Việc: Trước hết, xác định rõ trách nhiệm và phạm vi công việc của mỗi đối tác trong dự án. Điều này bao gồm việc chỉ định nhiệm vụ cụ thể, mốc thời gian, và các yêu cầu kỹ thuật. Đảm bảo rằng tất cả các khía cạnh của dự án được mô tả chi tiết trong hợp đồng.
Thỏa Thuận Về Ngân Sách và Thời Gian: Điều quan trọng là đặt ra ngân sách và thời gian cụ thể cho dự án. Xác định các khoản chi phí dự kiến và mốc thời gian hoàn thành. Điều này giúp đảm bảo rằng dự án sẽ được điều hành một cách hiệu quả và đúng theo kế hoạch.
Quản Lý Rủi Ro: Trong hợp đồng, đề cập đến cách quản lý rủi ro và giải quyết xung đột nếu chúng xảy ra. Xác định các điều khoản liên quan đến thay đổi trong phạm vi công việc hoặc ngân sách nếu cần thiết.
Điều Kiện Thanh Toán: Xác định rõ điều kiện thanh toán trong hợp đồng, bao gồm lịch trình thanh toán và các điều khoản về việc kiểm tra và chấp nhận công việc. Điều này giúp đảm bảo rằng bạn và các đối tác sẽ có một quy trình thanh toán rõ ràng.
Bảo Hiểm: Đảm bảo rằng tất cả các đối tác liên quan có bảo hiểm phù hợp cho dự án. Xem xét việc yêu cầu các chứng chỉ bảo hiểm và điều khoản liên quan đến bảo hiểm trong hợp đồng.
Điều Khoản Chấm Dứt Hợp Đồng: Xác định điều khoản về việc chấm dứt hợp đồng nếu một trong các bên không tuân thủ các điều khoản hoặc nghĩa vụ của họ. Điều này giúp bảo vệ quyền lợi của bạn trong trường hợp xảy ra vấn đề.
Các Điều Khoản Phụ: Nếu có các yêu cầu hoặc điều khoản phụ khác liên quan đến dự án, hãy đảm bảo rằng chúng được đưa vào hợp đồng một cách rõ ràng và chi tiết.
Thỏa Thuận Bảo Mật: Trong trường hợp dự án đòi hỏi bảo mật về thông tin quan trọng, hãy xác định các điều khoản bảo mật và quyền riêng tư trong hợp đồng.
Xem Xét Luật Pháp Địa Phương: Luôn xem xét luật pháp địa phương và quy định liên quan đến việc lập hợp đồng và thực hiện dự án. Điều này giúp bạn đảm bảo rằng hợp đồng của bạn tuân thủ tất cả các quy định pháp luật.
Lập hợp đồng và thỏa thuận chi tiết là một phần quan trọng trong quá trình triển khai dự án đài phun nước. Điều này giúp đảm bảo rằng mọi phía liên quan đều hiểu rõ và tuân thủ các điều khoản, đồng thời bảo vệ quyền lợi của bạn và đối tác trong suốt quá trình dự án.
IV. Lưu ý Trong Quá Trình Thiết Kế Đài Phun Nước
Thiết kế và tích hợp thẩm mỹ là một phần quan trọng trong việc tạo ra một đài phun nước hấp dẫn và đáng nhớ. Dưới đây, chúng tôi sẽ xem xét cách bạn có thể thiết kế và tích hợp các yếu tố thẩm mỹ để tạo nên một tác phẩm nghệ thuật nước tuyệt đẹp.
Xác Định Mục Tiêu Thẩm Mỹ: Trước hết, bạn cần xác định mục tiêu thẩm mỹ của dự án. Bạn muốn tạo ra một đài phun nước với thiết kế hiện đại, cổ điển, hay một phong cách riêng? Hãy đảm bảo rằng thiết kế phản ánh mục tiêu này.
Lựa Chọn Vật Liệu Thẩm Mỹ: Chọn các vật liệu thẩm mỹ phù hợp với thiết kế của bạn. Đài phun nước có thể được làm từ đá, gạch, thép không gỉ, thủy tinh cường lực, hoặc thậm chí từ vật liệu tự nhiên như đá cảnh. Chất liệu này sẽ đóng vai trò quan trọng trong việc tạo nên vẻ đẹp tổng thể của dự án.
Tích Hợp Màu Sắc: Sử dụng màu sắc để tạo điểm nhấn và tạo sự hấp dẫn thị giác. Áp dụng màu sắc phù hợp với môi trường xung quanh và mục tiêu thẩm mỹ của dự án. Màu sắc có thể được tích hợp qua ánh sáng, đèn LED, hoặc màu của vật liệu chính.
Thiết Kế Vòi Phun Nước: Thiết kế các vòi phun nước để tạo ra các hiệu ứng nước độc đáo. Cân nhắc sử dụng vòi phun có thể điều chỉnh được để thay đổi hình dạng và chiều cao của các vòi phun. Điều này tạo ra sự đa dạng trong biểu diễn nước.
Tích Hợp Ánh Sáng: Ánh sáng là một yếu tố quan trọng trong thiết kế thẩm mỹ của đài phun nước. Sử dụng đèn LED hoặc chiếu sáng để tạo ra các hiệu ứng ánh sáng đa dạng, đồng bộ với nước. Ánh sáng có thể thay đổi màu sắc và độ sáng theo thời gian để tạo ra một trải nghiệm thú vị.
Tạo Không Gian Xung Quanh: Xem xét việc tạo ra không gian xung quanh đài phun nước để tăng cường thẩm mỹ. Sử dụng cây cỏ, hoa, và các yếu tố thiết kế cảnh quan khác để làm đẹp cho môi trường xung quanh.
Tích Hợp Phun Nước Nghệ Thuật: Sử dụng nghệ thuật nước để tạo ra các hiệu ứng nước phức tạp và đẹp mắt. Điều này có thể bao gồm việc tạo ra các mô hình nước độc đáo, bắn nước theo các hình dạng nghệ thuật, hoặc thậm chí là mô phỏng các tác phẩm nghệ thuật bằng nước.
Tích Hợp Âm Nhạc: Nếu có khả năng, tích hợp âm nhạc vào biểu diễn nước của bạn. Âm nhạc có thể tạo ra sự đồng bộ và tạo cảm xúc cho người xem.
V. Lựa chọn đơn vị thiết kế đài phun nước uy tín
UNION – Đơn Vị Thiết Kế và Thi Công Nhạc Nước Số 1 Việt Nam
UNION là một trong những công ty tiên phong và uy tín hàng đầu trong lĩnh vực thiết kế và thi công nhạc nước tại Việt Nam. Với hơn 10 năm kinh nghiệm và danh tiếng vượt trội, UNION đã thực hiện nhiều dự án nhạc nước độc đáo và ấn tượng trên toàn quốc. Dưới đây là những điểm mạnh và tầm ảnh hưởng của UNION:
- Kinh Nghiệm và Chuyên Môn: UNION có đội ngũ chuyên gia và kỹ sư có kinh nghiệm rộng lớn trong lĩnh vực thiết kế và thi công nhạc nước. Họ đã thực hiện thành công nhiều dự án phức tạp và độc đáo, đảm bảo sự chuyên nghiệp và tinh thần sáng tạo.
- Công Nghệ Hiện Đại: UNION sử dụng công nghệ tiên tiến và thiết bị hiện đại để tạo ra các hiệu ứng nước và ánh sáng đẹp mắt, đồng thời tích hợp âm nhạc để tạo ra các biểu diễn nhạc nước độc đáo.
- Sự Đa Dạng và Tùy Chỉnh: UNION cung cấp các giải pháp đa dạng cho các dự án nhạc nước, từ các đài phun nước nhỏ cho khu vườn riêng tư đến các biểu diễn nhạc nước lớn cho các khu du lịch và công viên giải trí.
- Tầm Ảnh Hưởng: Với danh tiếng và uy tín trong ngành, UNION đã thực hiện thành công nhiều dự án quốc tế và có tầm ảnh hưởng mạnh mẽ trong lĩnh vực nhạc nước.
- Tận Tâm Và Chất Lượng: UNION cam kết đem đến sự hài lòng tuyệt đối cho khách hàng bằng việc thi công chất lượng và chăm sóc khách hàng tận tâm.
- Dự Án Tiêu Biểu: UNION xin giới thiệu một vài dự án tiêu biểu đã thực hiện.
- Hợp Tác Liên Kết: UNION thường xuyên hợp tác với các đối tác trong và ngoài nước để phát triển dự án nhạc nước đẳng cấp và độc đáo.
Sự lựa chọn UNION là một bước đi đúng đắn để đảm bảo rằng dự án đài phun nước của bạn sẽ được thiết kế và thi công bởi một đối tác uy tín và có tầm ảnh hưởng trong lĩnh vực nhạc nước. UNION không chỉ mang lại sự chuyên nghiệp và sáng tạo mà còn đem đến tầm ảnh hưởng và danh tiếng cho dự án của bạn.
Báo giá thiết kế đài phun nước nghệ thuật tại UNION – mới nhất
Chi phí thiết kế đài phun nước, đài phun nước phụ thuộc vào nhiều yếu tố khác nhau: quy mô dự án, số lượng thiết bị, kiểu thiết kế đài phun nước, thời gian thiết kế, …
Dưới dây mời bạn tham khảo Bảng Báo giá thiết kế đài phun nước nghệ thuật, Thiết kế đài phun nước 3D tại UNION:
Giá thiết kế 2D, 3D đài phun nước với dự án dưới 1 tỷ: 30-50 triệu đồng
Giá thiết kế 2D, 3D đài phun nước với dự án từ 1 tỷ đến 5 tỷ : 50-80 triệu đồng
Giá thiết kế 2D, 3D đài phun nước với dự án từ 5 tỷ trở lên : 80- 120 triệu đồng
Vui lòng liên hệ trực tiếp để được tư vấn chi tiết . Hotline: 0345 600 100
Kết luận
Đài phun nước nghệ thuật không chỉ là một công nghệ kỹ thuật mà còn là một sản phẩm nghệ thuật thẩm mỹ và tinh tế. Cần có quy trình thiết kế đài phun nước nghệ thuật chuẩn để biến ý tưởng ban đầu thành dự án đài phun nước hoàn chỉnh.
Bài viết này đã giới thiệu chi tiết về quy trình thiết kế đài phun nước nghệ thuật, từ ý tưởng ban đầu đến việc tạo nên những công trình ấn tượng và độc lập. Hy vọng rằng nó đã giúp bạn hiểu rõ hơn và ít nhất là có thể gia tăng

